• Acheter Du neuf
  • Louer
Dans un rayon de
Budget
Mini
Maxi

    Faites estimer votre bien par un professionnel

    Découvrez nos 1 biens immobiliers neufs disponibles

    Trier par
    Les plus récentes
    • Prix croissant
    • Prix décroissant
    • Les moins récentes
    • Les plus récentes
    • Surface croissant
    • Surface décroissant
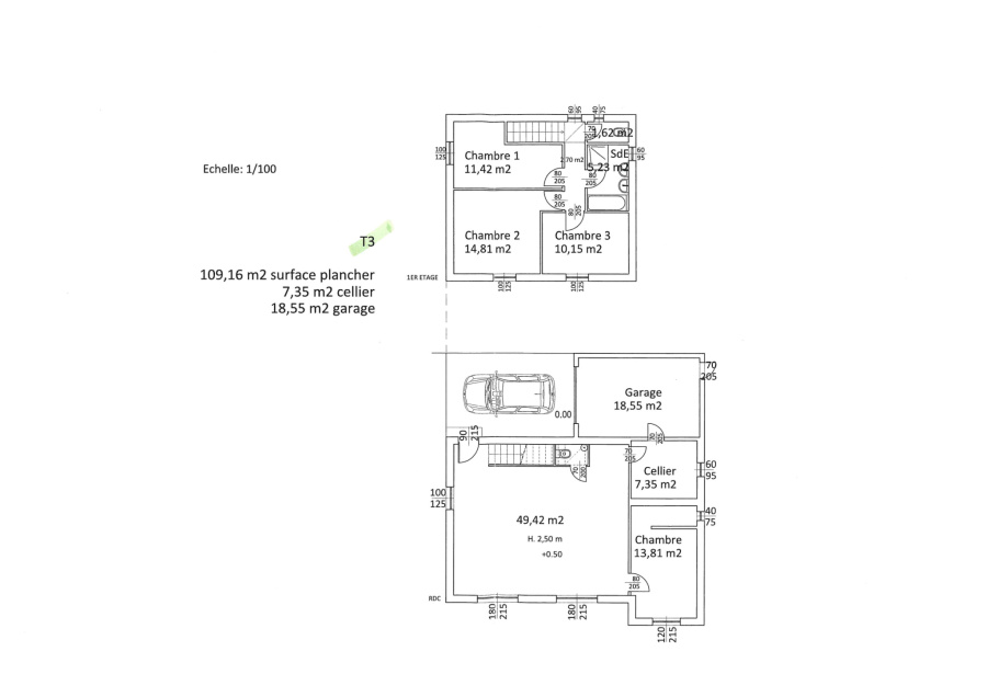
    Maillane (13910)

    Maison

    325 000 €
    Proposé par
    Julie Immobilier Graveson