Page suivante
Page précédente
Maillane (13910)

Maison

325 000 €
Réf 5062

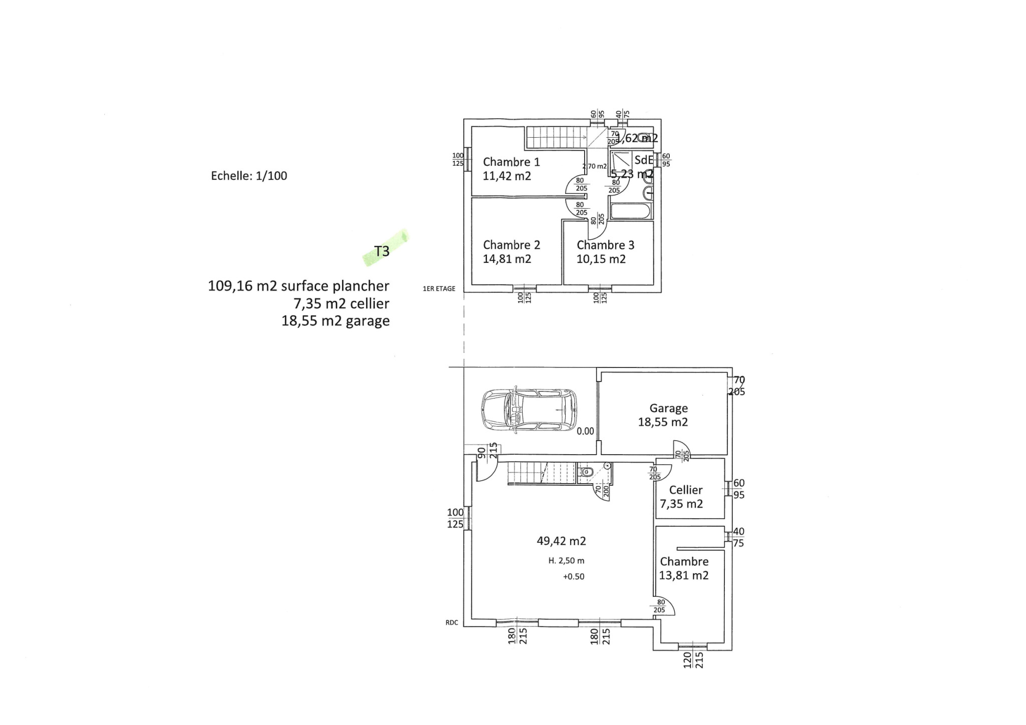
Découvrez cette maison neuve de 109 m² en vente en état futur d'achèvement (VEFA) au centre de Maillane, proche des commodités.

  • Surface habitable : 109 m²
  • Garage : 18,55 m²
  • Terrain : 450 m² (piscinable)
  • Stationnement : Parking intérieur et extérieur

Avantages VEFA :

  • Frais de notaire réduits
  • Personnalisation possible
  • Garantie décennale et dommages-ouvrage

État de la construction : Fondations coulées, livraison prévue fin 2025. Prix ajustable selon avancement.

Ne manquez pas cette opportunité unique de devenir propriétaire à Maillane ! Contactez-nous pour plus d'infos ou une visite.

"Photo non contractuelle"

"Les informations sur les risques sont disponibles sur Géorisques : Géorisques.gouv.fr"

Bilan énergétique

Diagnostics énergetiques
A propos de ce bien Caractéristiques de ce bien
  • Surface 109 m²
  • 4 chambre(s)
  • 1 salle(s) d'eau
  • construit en 2024
  • Chauffage individuel : air pulsé (climatisation)
  • 1 garage(s)
  • 1 parking(s)
  • exposition Sud
  • 1 niveau(x)
  • piscinable

Financier

Informations financières
Prix de vente 325 000 € Les honoraires d'agence seront intégralement à la charge du vendeur

Autour du bien

Découvrez le quartier

Simulation

Calcul des mensualités
* Champs obligatoires